La maison GRJ : Du PassivHaus en Normandie !
Livraison d’une maison passive et écologique à Blainville-sur-mer : architecture minimaliste et confort thermique.
Projet PassivHaus écologique à ossature bois,
en secteur des Monuments historiques protégés

- Lieu : Blainville-sur-mer (50)
- Maître d’ouvrage : Privé
- Programme : Construction d’une maison d’habitation PassivHaus dans un secteur patrimoine historique sauvegardé.
- Surface : 140 m²
- Mission : Complète
- Mode constructif : Écoconstruction, maison écologique en ossature bois, isolation ouate de cellulose et tissu recyclé, bardage bois
- Exigence thermique : PassivHaus
- Chargés de projet : Lisa Buron / Paul Bernard
- Suivi de chantier/photos : Atelier Fyri
- Phase : livrée en 2025
Petit mais ambitieux !
Ossature et bardage bois, matériaux écologiques biosourcés, toiture ardoises naturelles, grandes menuiseries triple vitrage, conservation des vielles pierres, architecture minimaliste… La maison GRJ répond à toute ces exigences, en plein secteur Patrimoine Historique sauvegardé!
Prenant place sur une jolie parcelle viabilisée dans la commune de Blainville-sur-Mer, non loin de Coutances et Saint-Lô, dans le département de la Manche, cette petite maison compacte et chaleureuse offre un confort thermique exceptionnel à ses habitants.
CONTEXTE et programme
Le terrain d’assise présente quelques éléments remarquables: un vieux mur de pierres en bon état ceinturant le jardin, de grands arbres d’alignement et une exposition solaire optimum !
Postulat de départ : les clients souhaitent -autant que possible- une maison de plain-pied, d’environ 140m², répondant aux standards PassivHaus, compacte et minimaliste. Le tout cadré par un budget serré.
Parti pris architectural : radical et minimaliste
L’implantation sur la parcelle est radicale : la maison se développe dans la largeur du terrain, de bords à bords, sectionnant ainsi le terrain en deux jardins : le premier -d’apparat- par lequel on entre et on gare sa voiture ; et un second, une fois la maison traversée, plein Sud et à l’abri des regards voisins.
Le bâti s’exprime radicalement dans cette largeur, dessinant une façade rythmée par trame structurelle en bois apparente, offrant tantôt un espace extérieur couvert, tantôt un mur plein bardé.
Cette écriture minimaliste tranche avec sa coiffe, formée par une toiture à double pan d’ardoises naturelles. Le projet présente deux marqueurs forts : un RDC à l’allure très contemporaine emprunte aux modernes, et un couronnement traditionnel, faisant écho aux architectures vernaculaires voisines.
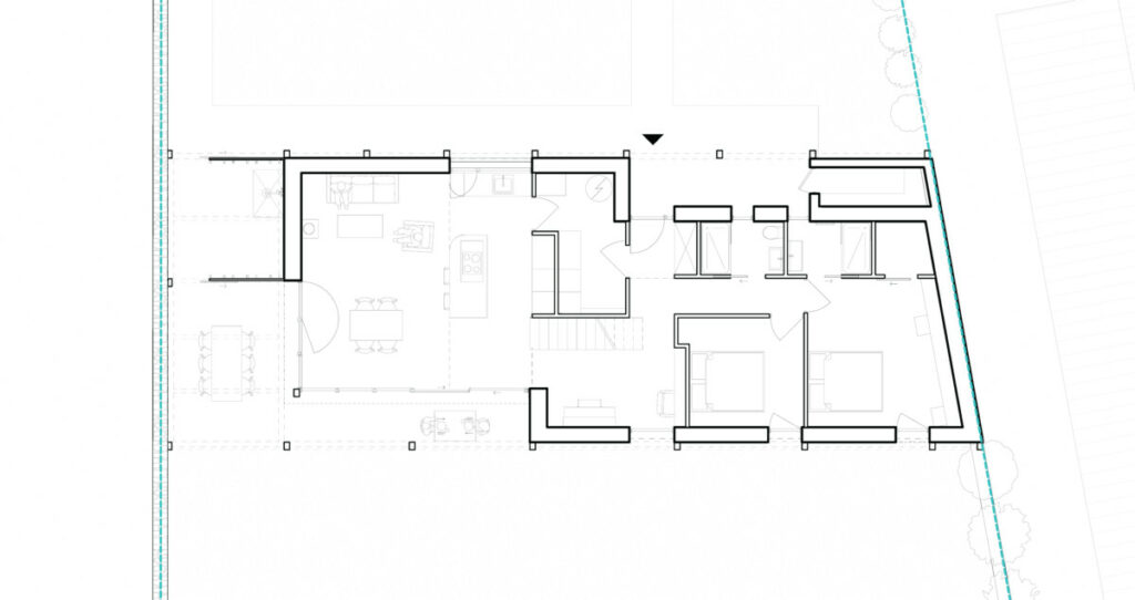
simplicité du plan
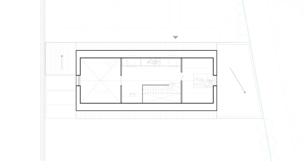
L’habitation qui se développe principalement sur un RDC, au plan simple, aux circulations optimisées et aux surfaces généreuses, surtout pour les espaces de vie. Sous la toiture, les combles sont investis pour y ménager un espace modulable, pouvant accueillir une chambre supplémentaire et une mezzanine boudoir ou parfois dortoir.
Cuisine et salon disposent de larges baies toute hauteur, en triple-vitrage, ultra-performants thermiquement et phoniquement. Ces grandes ouvertures créent le lien direct et aisé avec la terrasse/coursive protégée. Un vrai espace intermédiaire entre le dedans et le jardin.















